View from Massachusetts Avenue

Basement level floor plan

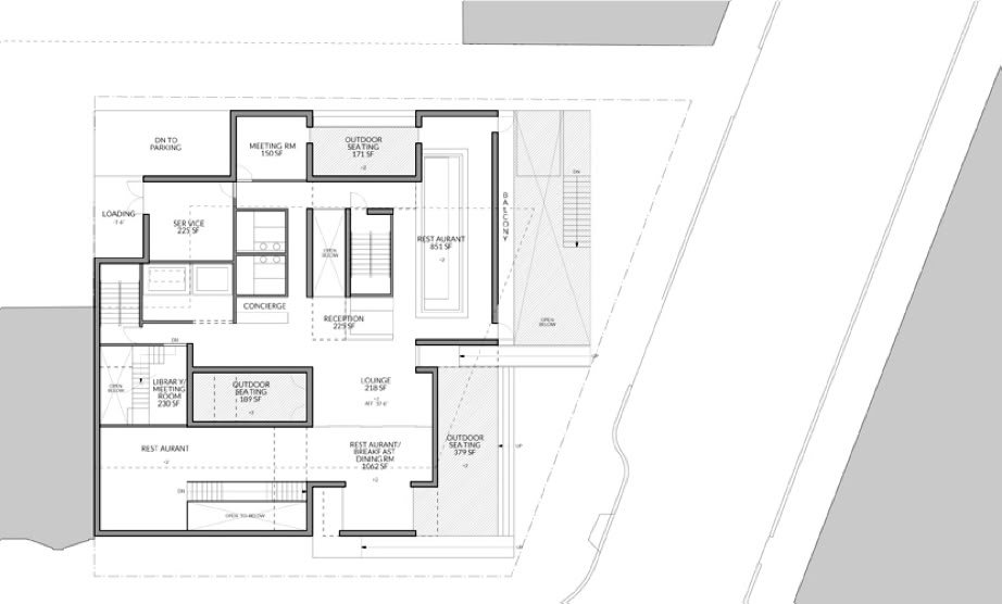
Ground level floor plan

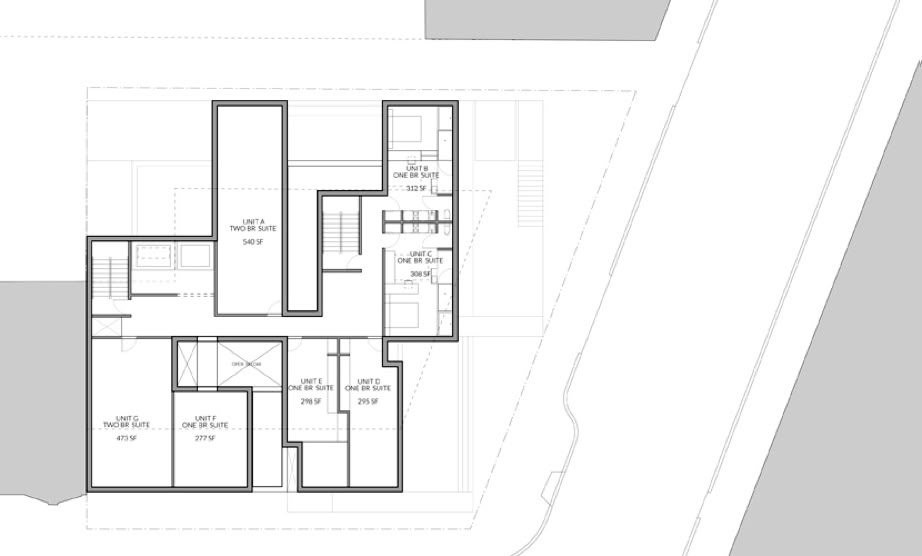
Typical guest floor plan

THE HOTEL 10

Cambridge MA. Proposed 2010

A boutique hotel proposal with a flexible program that converts typical guest rooms into long term furnished apartments. While taking advantage of the corner site, the building is composed of four slender pencil towers forming light shafts and courtyards in between, resulting all guest rooms to be corner units. Fiber glass exterior wall panels are designed to achieve crenelated facade and they are mirrored in interior walls as well, creating a highly sculpted and integrated indoor space, while bringing the outside in.

Massing study model

Typical unit study model

Perspective view showing ground floor retail

Typical Unit

Perspective view showing ground floor lobby area

Type A

Type B

3 panels x 6 stories wall assembly

Type C

Type D

Two solid precast fiberglass panels in mirror image (below)  are paired and adhered back-to-back to create a wall assembly unit.  Wall units can be cut to size to incorporate windos (above). Once installed, wall units compose exterior and as well as interior finish surfaces.

Type A

Type B

Type C

Type D

Exterior panels

A

B

C

D

Wall unit system

Interior panels

Window  panels

Solid  panels

Building Section

The images and design  copyright 2010  - 2025 Choi+Shine.  All rights reserved. 


Contact:  Choi+Shine for written permission for image use.

Instagram @choishinearch